Descrizione

COMUNE DI PREMOSELLO CHIOVENDA- Nella tranquilla e soleggiata frazione Cuzzago, a pochi minuti dai principali servizi, vendesi appartamento sito al primo piano di casa singola bifamiliare con terreno circostante.

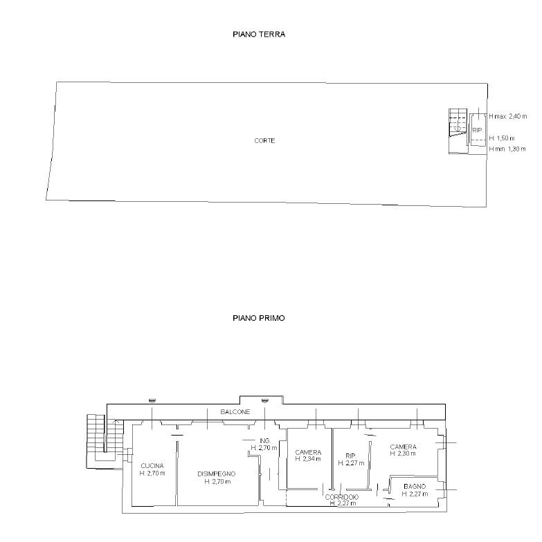
L'immobile ha ingresso indipendente da scala esterna ed è composto da atrio, cucina abitabile, disimpegno con camino a legna, due camere da letto, ripostiglio, corridoio, bagno con vasca e bel balcone esposto a sud, lungo tutta la facciata della casa. Il locale disimpegno trattasi in realtà del soggiorno: ad oggi non può essere tale per l'assenza del requisito RAI (rapporto aeroilluminante) ma possibilità di sostituire l'attuale finestra con una porta balcone per apportare il cambio d'uso del vano (approfondire con un tecnico). A completamento della proprietà vi sono:
- il sottotetto non abitabile accessibile da botola interna;
- piccolo ripostiglio nel sottoscala al piano terra;
- striscia di terreno pianeggiante di 396 mq ad uso esclusivo, recintato su due lati;
- giardino davanti casa e all'ingresso in comproprietà con l'unità abitativa sita al piano terra.

Il riscaldamento è autonomo a radiatori con caldaia Vaillant non a condensazione e il supplemento del camino a legna (il boiler in bagno è da rimuovere). Utenze di energia elettrica e gas metano autonome. Per l'acqua è attualmente presente un unico contatore ma obbligo di installarne uno autonomo. Infissi esterni in legno vetro singolo con persiana il legno. Impianto di allarme. Tetto in tegole marsigliesi. Fossa biologica autonoma. Fognatura comunale attualmente assente nella frazione. Comodo accesso direttamente dalla strada provinciale. L'appartamento viene venduto arredato.

Edificio di vecchia costruzione con successiva ristrutturazione nel 1979. L'immobile necessita oggi di interventi di ammodernamento per un miglior efficientamento energetico. Eseguito accesso agli atti in Comune. Documentazione dell'immobile verificata e conforme. Attestato di Prestazione Energetica in fase di redazione. Video dell'immobile disponibile nell'annuncio pubblicato sul sito www.belinga.it


Caratteristiche principali

Stato Immobile
Buono
Grado
Medio
Posizione
Periferia
Panorama
Vista Monti
Orientamento
Nord Ovest Sud Est
Lati Liberi
4
Giardino
Privato
Arredi
Arredato
Tipo Soggiorno
Soggiorno
Tipo Cucina
Abitabile
Riscaldamento
Autonomo
Tipo Riscaldam.
Caldaia
Tipo Impianto
Radiatori
Fonte Energetica
Metano
Acqua Calda
Autonoma
Raffrescamento
No
Infissi
Legno
Serramenti
Buono
Persiana
Persiana Legno
Pavim. Giorno
Ceramica
Pavim. Notte
Parquet
Pavim. Cucina
Ceramica
Pavim. Bagno
Ceramica
Accesso Disabili
No
Accesso interno disabili
Non accessibile
Appartamenti
Uno
Isolamento
Non presente
Isolamento termico
Nessuno
Isolamento acustico
Nessuno
Destinato a residenti
Si
Impianto d’irrigazione
No
VMC
No
Accessori: Antifurto, Armadio a Muro, Camino, Ripostiglio

Mappa

via Nazionale 4, Premosello Chiovenda (VB)

Video

Richiedi informazioni

Invia
Cookie preference