Description

VOGOGNA TOWN COUNCIL - Centrally located and close to all main amenities, large flat for sale on the mezzanine floor of a multi-family house with only three residential units and no communal fees.

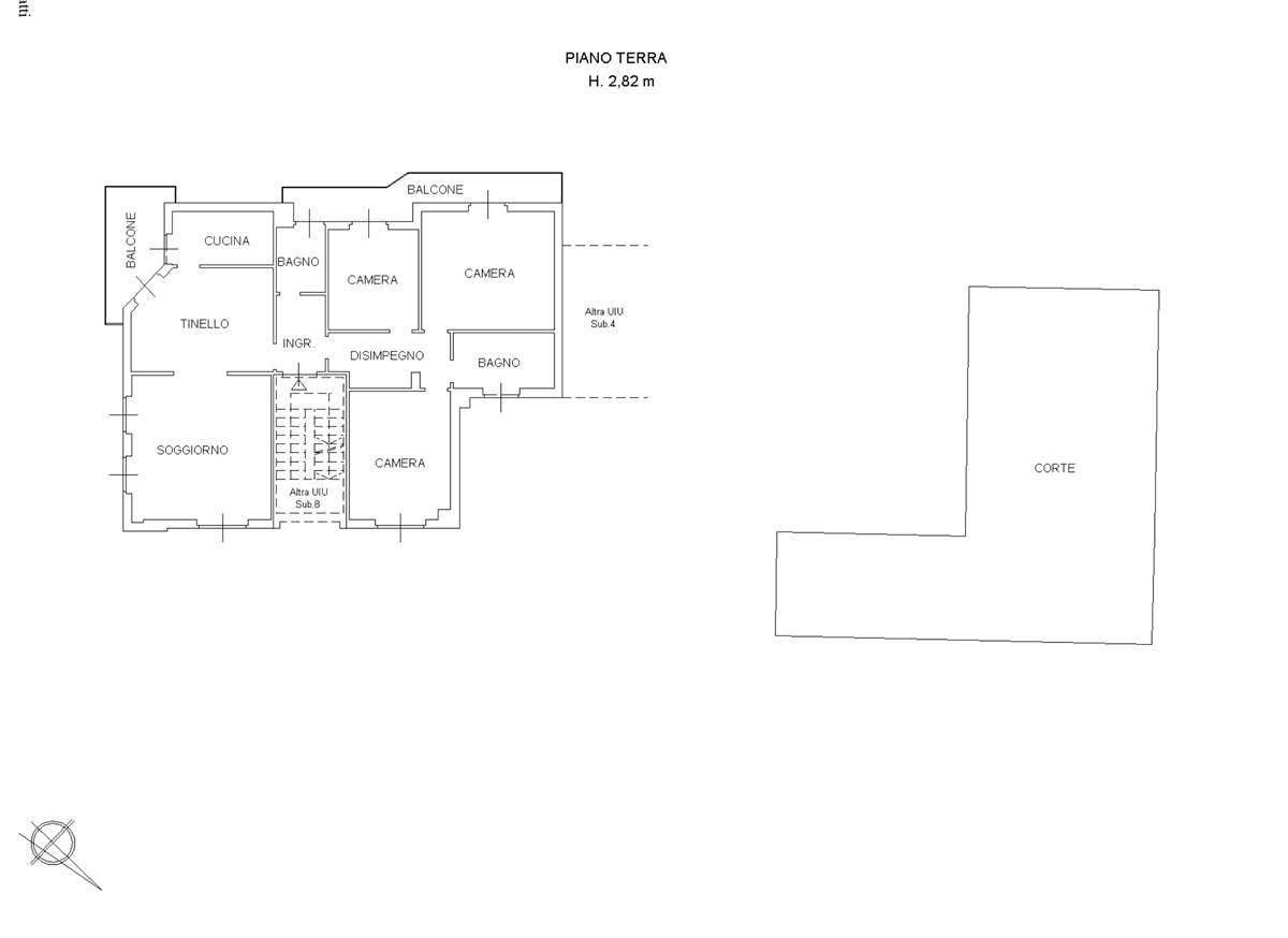
The property has access from the common stairwell and consists of an entrance hall, large living room with fireplace, dining room, kitchenette, three bedrooms, bathroom with bathtub and shower, guest bathroom, hallway and two balconies.
The property also includes:
- portion of the attic for exclusive use
- boiler room for shared use
- outdoor courtyard for exclusive use of approximately 105 square metres, of which 82 square metres are used as a garden and 23 square metres as an uncovered parking space.

The heating is independent with cast iron radiators, divided into two zones and with a condensing boiler installed in 2021. Supplement for open wood-burning fireplace and convector heater. Double-glazed aluminium window frames with PVC shutters. Independent electricity, water and natural gas utilities. Connection to the municipal sewer system. Concrete tile roof.

Energy Class F. Property documentation verified and compliant. Access to documents at the municipal archives has been granted. The building was constructed in the late 1970s. Sold furnished as shown in the photographs. Video of the property available in the advertisement published on the website www.belinga.it.


Primal Features

Property Conditions
Good
Rank
Medium
Position
Center
View
Mount View
Orientation
North West South East
Free Sides
4
Garden
Private
Furniture
Half Furnished
Type living
Living room
Kitchen
Small Kitchen
Heating
Independent
Heating Type
Condensing boiler
Type of heating system
Radiator heating
Energy source
Natural Gas Heating
Hot Water
Independent
Cooling
No
Fixtures
Aluminium Double Glazing
Doors
Good
Blind
PVC Blinds
Floors Living Room
Ceramic
Floors Bedrooms
Ceramic
Floors Kitchen
Ceramic
Floors Bathroom
Ceramic
Access for disabled
No
Disabled internal access
Not accessible
Insulation
Not present
Thermal insulation
None
Acoustic insulation
None
For residents only
Yes
Irrigation system
No
MV
No
Accessories: Fireplace, Double Glazing, Closet

Map

via Nazionale 77, Vogogna (VB)

Video

Information request

Send
Cookie preference