Description

CEPPO MORELLI TOWN COUNCIL - In the town centre, in a quiet location but at the same time a stone's throw from the Valle Anzasca state road, apartment for sale in a semi-detached house dating back to around the mid-19th century. We are located at an altitude of about 750 metres and only 5 km from the gates of Macugnaga with its Monte Rosa and ski resorts.

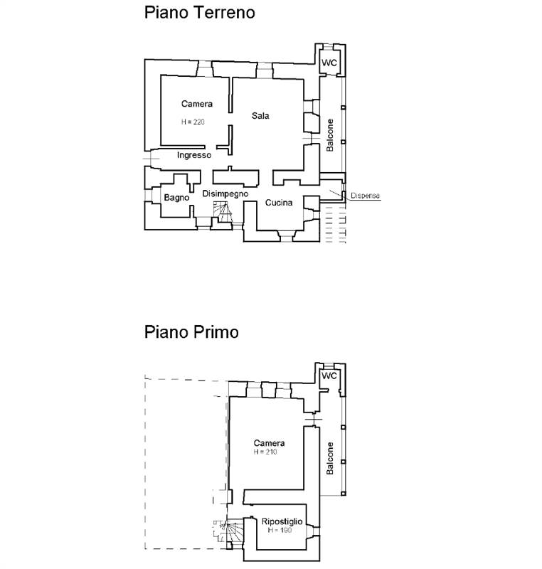
The property for sale is mainly on two levels connected by an internal wooden staircase. On the ground floor, there is a separate entrance onto a corridor, a living room with a beautiful wood-burning fireplace, a vaulted kitchen with a side pantry, a double bedroom, a hallway, a bathroom with a bathtub and a covered wooden balcony with a small outdoor toilet, now disused and used as a storage room. On the first floor, there is a spacious second bedroom, a storage room and a wooden balcony with a beautiful view of the valley and Monte Rosa. The floor area of the two floors is approximately 115 square metres, including balconies and excluding external/internal walls.

The heating is independent with cast iron radiators and an Immergas condensing boiler (year 2019). Wood-burning fireplace supplement. Independent electricity, water and natural gas utilities. Some double-glazed wooden window frames and some single-glazed wooden window frames. Front door recently replaced. Grilles on the ground floor. Built-in wardrobes. Partially renovated in the 1990s (kitchen and bathroom). The property is vacant and ready to move into immediately. Sold almost fully furnished. Connected to the municipal sewer system. Uninsulated metal roof with new snow guards, replaced in 2025 (roof repainted about 8 years ago).

The property also includes:
- three cellars in the basement, two of which are connected, for a total area of approximately 29 square metres;
- half of the attic on the third floor, accessible by an external stone staircase, measuring approximately 27 square metres;
- small garden for shared use outside the house;
- a lovely flat private garden of approximately 210 square metres a few metres from the house. See green colouring in the attached map extract.

Documentation currently being verified. Energy performance certificate currently being drafted. Video of the property available in the advertisement published on the website www.belinga.it


Primal Features

Property Conditions
Good
Rank
Medium
Position
Mountain
View
Mount View
Orientation
North West South East
Free Sides
4
Garden
Private
Furniture
Half Furnished
Type living
Living room
Kitchen
Small Separate Kitchen
Heating
Independent
Heating Type
Condensing boiler
Type of heating system
Radiator heating
Energy source
Natural Gas Heating
Hot Water
Independent
Cooling
No
Fixtures
Wooden double glazed
Doors
Good
Blind
Wood Blinds
Floors Living Room
Parquet
Floors Bedrooms
Parquet
Floors Kitchen
Ceramic
Floors Bathroom
Ceramic
Access for disabled
No
Disabled internal access
Not accessible
Apartments
One
Insulation
Not present
Thermal insulation
None
Acoustic insulation
None
For residents only
Yes
Accessories: Cupboard, Fireplace, Double Glazing, Closet

Map

Località Case Manoli 38, Ceppo Morelli (VB)

Video

Information request

Send
Cookie preference